Área do Cliente
|
Acesse pelo celular

Comercial Imóveis - Jardim Emília Comercial para Venda em Sorocaba

|
Compartilhe:
Total para Acessórios valores sujeitos a alteração.

Venda

(ITBI, Registro, Escritura e Certidões)
Consulte-nos
Comercial
Finalidade
950351
Referência
1
Banheiro
210.00 m²
A. Construída
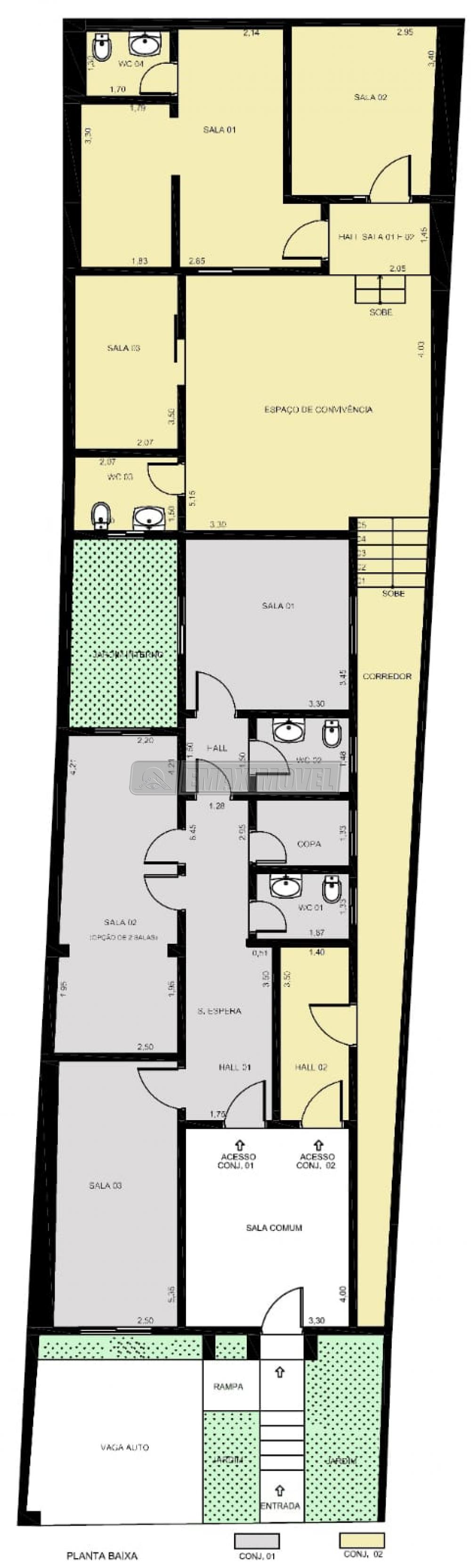
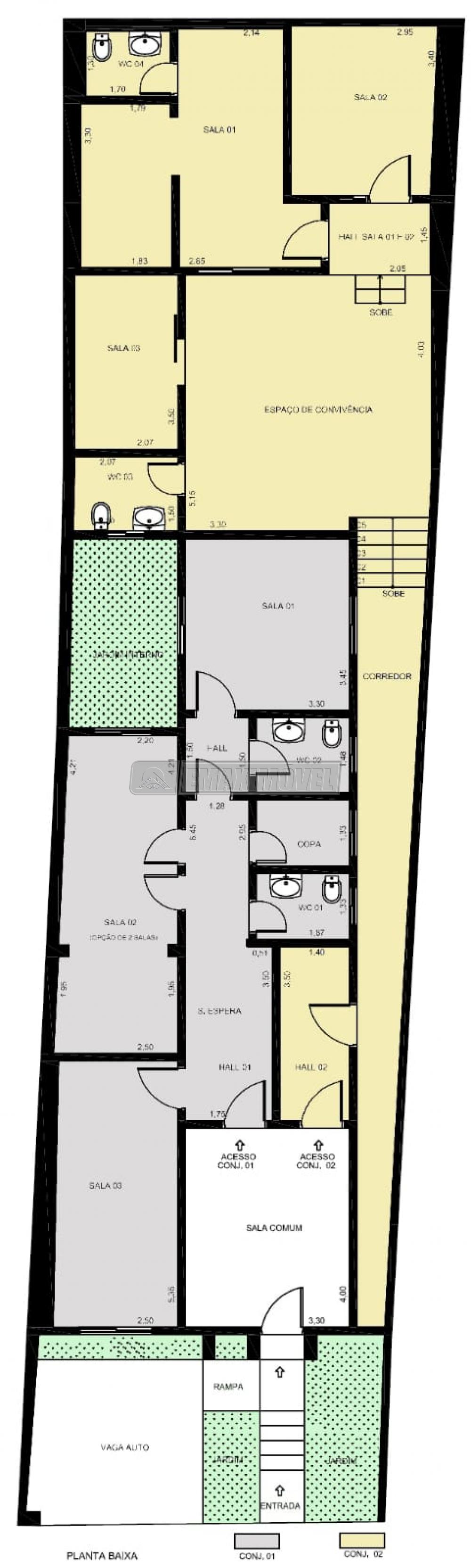
Descrição do Imóvel

Descrição do Imóvel:

Belo imóvel comercial nos fundos, ideal para estabelecer o seu negócio.
Entrada compartilhada (frente ocupada por uma clínica de estética), sem recepção própria.
Conjunto independente com 3 salas amplas, adaptáveis para diversos tipos de atendimento.
1 banheiro estrategicamente posicionado.
Área externa descoberta, perfeita para momentos de descanso ou atividades ao ar livre.
Corredor lateral que facilita a circulação.
Sala de espera acolhedora para maior conforto dos clientes.

Diferenciais:

Equipado com alarme e interfone independentes para maior segurança e comodidade.
Salas com pontos de água e esgoto, além de instalação de ar-condicionado pronta.
Espaço disponível para placas e divulgação do seu negócio.

Localização:

Próximo à Avenida Washington Luiz, em localização privilegiada.
Fácil acesso à Rodovia Raposo Tavares e ao centro da cidade, garantindo excelente visibilidade e comodidade para seus clientes.

Itens do Imóvel

Área de Luz
Banheiros : 1
Copa
Cozinha
Salas : 3
Terraço

Simule um Financiamento

Localização Comercial / Imóveis em Sorocaba


Venda

(ITBI, Registro, Escritura e Certidões)
Consulte-nos

Total
1.100.000,00

DÚVIDAS SOBRE O IMÓVEL
PREENCHA O FORMULÁRIO


Concordo com os Termos e Privacidade
Imóveis Similares